Alimentación de material libre de polvo o encerrado
Transferencia cerrada de polvos y gránulos
Trituración de polvos y gránulos
Clasificación y separación de partículas
Llenado y sellado de polvo
Mezclador húmedo, esferonizador de extrusión, lecho fluidizado, cribado y llenado
Alimentación sin polvo en bolsas pequeñas o a granel
Sistema automático de transferencia de material cerrado
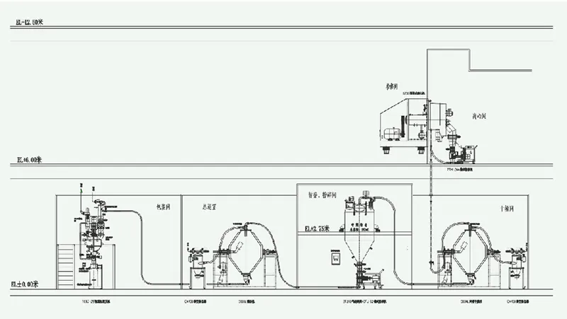
Línea de producción de granulación, secado, almacenamiento temporal, trituración, mezcla y envasado.
Línea de producción de granulación, secado, almacenamiento temporal, mezcla, trituración, separación magnética y envasado.
Línea de producción de formulaciones: mezclador húmedo, esferonizador de extrusión, lecho fluidizado, tamizado y llenado.
Instalación y puesta en marcha
Para líneas de producción completas, ofrecemos servicios de instalación y puesta en marcha en el sitio para garantizar una integración fluida del sistema y un rendimiento óptimo.
(En la imagen: Nuestros técnicos instalan un silo de pesaje y transporte de tornillo y un aislador de pesaje y envasado libre de humedad y oxígeno).
Entrega, capacitación y soporte técnico
Para equipos individuales, ofrecemos capacitación técnica tanto in situ como remota en China. Para líneas de producción de sistemas completos, nuestros ingenieros imparten de 2 a 3 días de capacitación teórica y práctica durante la puesta en marcha, seguidos de 3 a 7 días de supervisión in situ durante la operación de prueba. Esto garantiza que los operadores estén completamente capacitados en operación independiente, mantenimiento rutinario y resolución de problemas básicos.
Respuesta del servicio posventa
Ofrecemos garantía integral y servicios de reemplazo de componentes para mantener un rendimiento de producción estable.
(En la imagen: Nuestros técnicos realizan el mantenimiento de la válvula de llenado de una máquina envasadora de un cliente en el sitio).
Garantía posventa
Un almacén de repuestos dedicado nos permite suministrar componentes de reemplazo a precios preferenciales, garantizando la continuidad del servicio a largo plazo para todos los clientes.
Hable con un experto
Nuestro equipo está listo para discutir su proyecto y ayudarlo a encontrar la solución adecuada para el manejo o peletización de polvo.